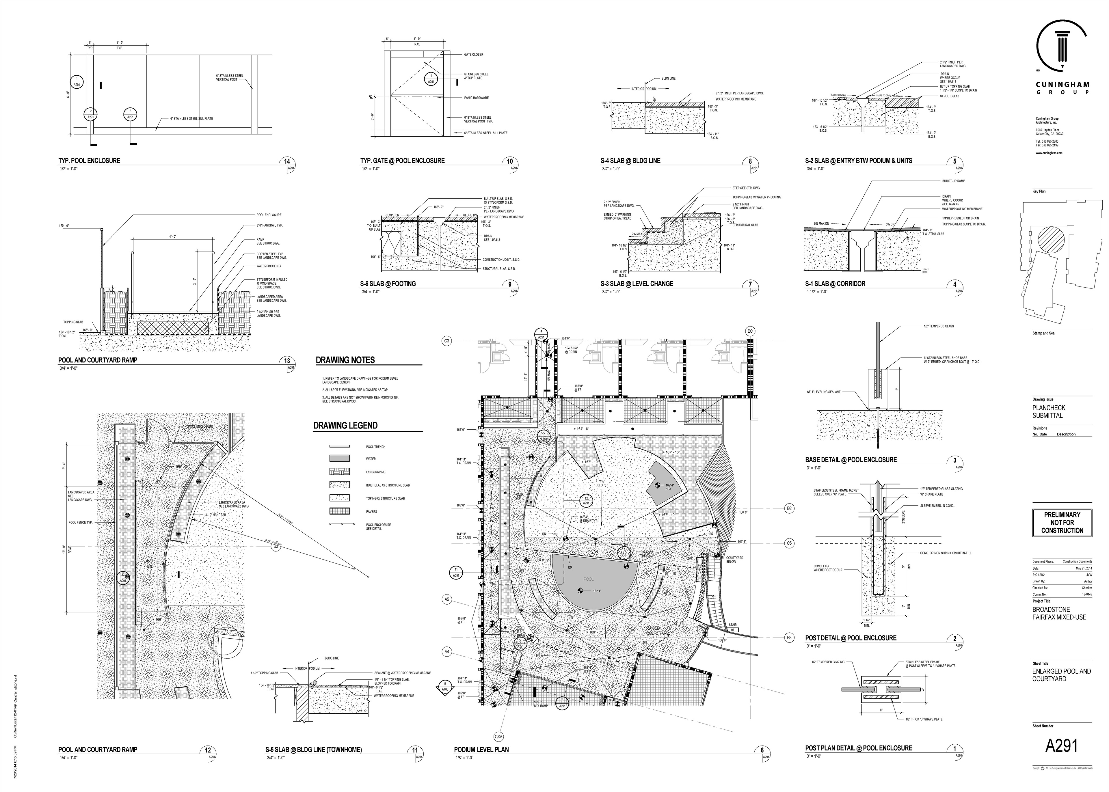
Broadstone Fairfax / CGA
Cuningham Group Architecture A 5 story mixed-use development in Los Angeles, CA. Sitting on a high volume intersection of San Vicente and Fairfax, the project is comprised of ground floor retail, 8 town homes, and 142 apartments.